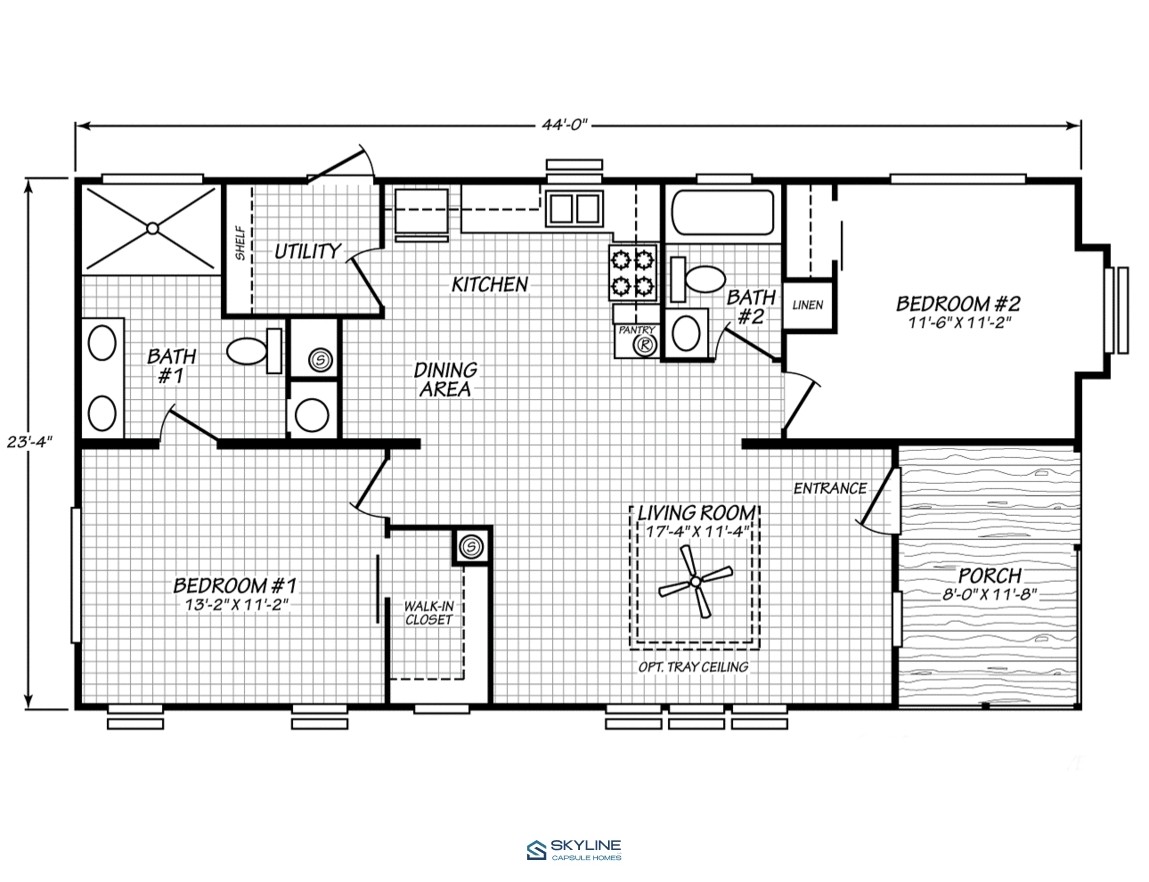
Osprey 2444O22
933 Square Feet
Bedrooms: 2 • Bathrooms: 2 • Sections: Single
About the SkyLine capsule homes
Over 100 different models available — Tiny Homes, RV Park Models, Modular, and Mobile Homes.
Explore skyline capsule homes





























